#中古住宅
(商談中)大町市常盤874-1 中古住宅
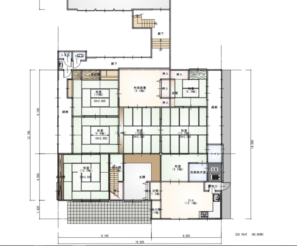
土地1348.22㎡(407.84坪) 建物 母屋218.18㎡(66坪) 他 土蔵・倉庫・物置・外便所




















Access
大町市常盤874-1、899-1
REAL ESTATE DATA
- 用途:中古住宅
- 価格:680万
- 面積:土地1348.22㎡(407.84坪) 建物 母屋218.18㎡(66坪) 他 土蔵・倉庫・物置・外便所
- 所在地:大町市常盤874-1、899-1
- 容積率:200%
- 建ぺい率:60%
- 用途地域:無指定
- 地目:宅地
- 地勢:平坦
- 現況:住まなくなってから17年ほどたっている。
- 設備:17年前からそのままのため、水回りは整備・リフォームが必要
- 校区:大町南小学校2.4㎞ 大町中学校4.0㎞ 私立あすなろ保育園2.6㎞
- 取引態様:専任媒介
- 備考:・JR 信濃常盤駅2.8㎞ 大町市役所4.1 km ・現況引き渡し。 ・お住まいになっていただける方対象(営利目的の方お断り) ・大家族の方や、古民家をリノベーションしてお住まいになりたい方におすすめ! ・現地のご案内受付ております!
その他多数物件ご用意してます。
お気軽にお問い合わせください